Iklan

Pertanyaan

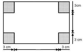
Selembar karton yang berbentuk persegi panjang akan dibuat kotak tanpa tutup dengan cara membuang persegi seluas 3×3 cm 2 di masing-masing pojoknya. Apabila panjang alas kotak 2 cm lebih dari lebarnya dan volume kotak itu adalah 72 cm 3 . Maka panjang kotak tersebut adalah ….

Selembar karton yang berbentuk persegi panjang akan dibuat kotak tanpa tutup dengan cara membuang persegi seluas 3 × 3 cm2 di masing-masing pojoknya. Apabila panjang alas kotak 2 cm lebih dari lebarnya dan volume kotak itu adalah 72 cm3. Maka panjang  kotak tersebut adalah ….

  1. 4 cm

  2. 5 cm

  3. 6 cm

  4. 7 cm

Ikuti Tryout SNBT & Menangkan E-Wallet 100rb

Habis dalam

01

:

00

:

33

:

50

Klaim

Iklan

M. Robo

Master Teacher

Jawaban terverifikasi

Jawaban

panjang kotak tersebut adalah 4 + 2 = 6 cm .

panjang kotak tersebut adalah 4 + 2 = 6 cm.

Pembahasan

Misalkan : Panjang kotak = ( x + 2) cm Lebar kotak = x cm Tinggi kotak = 3 cm Kemudian karena volumenya 45 cm 3 maka, Karena x adalah panjang bangun datar maka x yang memenuhi adalah 4 cm. Sehingga panjang kotak tersebut adalah 4 + 2 = 6 cm .

 

Misalkan :

Panjang kotak = (+ 2)  cm
Lebar kotak x  cm
Tinggi kotak = 3 cm
Kemudian karena volumenya 45 cm3 maka,

begin mathsize 14px style Volume equals plt equals left parenthesis straight x plus 2 right parenthesis left parenthesis straight x right parenthesis left parenthesis 3 right parenthesis 72 equals 3 straight x squared plus 6 straight x 0 equals 3 straight x squared plus 6 straight x minus 72 0 equals 3 left parenthesis straight x minus 4 right parenthesis left parenthesis straight x plus 6 right parenthesis straight x equals 4 space atau space straight x equals negative 6 end style 

Karena x  adalah panjang bangun datar maka x  yang memenuhi adalah 4 cm. Sehingga panjang kotak tersebut adalah 4 + 2 = 6 cm.

Perdalam pemahamanmu bersama Master Teacher
di sesi Live Teaching, GRATIS!

1

Nabila Ayu Dila Tiarrafidah

Pembahasan tidak lengkap Ini yang aku cari!

Ulfa Sari

Ini yang aku cari! Makasih ❤️

Moira Puti Alika

Pembahasan tidak lengkap

Belva Bintang Prayogatama

Jawaban tidak sesuai

Iklan

Pertanyaan serupa

Selisih dua kali kuadrat sebuah bilangan positif dengan dua kali bilangan tersebut adalah 60. Maka dua kali bilangan tersebut adalah ….

1

0.0

Jawaban terverifikasi

RUANGGURU HQ

Jl. Dr. Saharjo No.161, Manggarai Selatan, Tebet, Kota Jakarta Selatan, Daerah Khusus Ibukota Jakarta 12860

Coba GRATIS Aplikasi Roboguru

Coba GRATIS Aplikasi Ruangguru

Download di Google PlayDownload di AppstoreDownload di App Gallery

Produk Ruangguru

Hubungi Kami

Ruangguru WhatsApp

+62 815-7441-0000

Email info@ruangguru.com

[email protected]

Contact 02130930000

02130930000

Ikuti Kami

©2026 Ruangguru. All Rights Reserved PT. Ruang Raya Indonesia