Nayaka N
25 Agustus 2022 06:53
Iklan
Nayaka N
25 Agustus 2022 06:53
Pertanyaan
1
1
Iklan
N. Indah
Mahasiswa/Alumni Universitas Diponegoro
12 Desember 2022 10:02
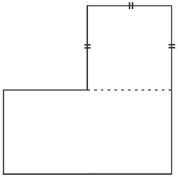
Jawaban yang benar adalah C.
Ingat.
Jika terdapat bangun datar gabungan, maka luas bangun tersebut dapat diperoleh dengan menjumlahkan luas bangun-bangun yang menyusunnya.
Perhatikan gambar bangun gabungan pada soal tersusun dari bangun persegi di bagian atas, dan bangun persegi panjang di bagian bawah.
Maka luas bangun dapat diperoleh dari menjumlahkan luas persegi dan luas persegi panjang.
Jadi, jawaban yang benar adalah C.
· 0.0 (0)
Iklan
Tanya ke AiRIS
Yuk, cobain chat dan belajar bareng AiRIS, teman pintarmu!
Roboguru Plus
Dapatkan pembahasan soal ga pake lama, langsung dari Tutor!


Perdalam pemahamanmu bersama Master Teacher
di sesi Live Teaching, GRATIS!